RENTADO
Local Comercial/Oficinas WTC
|
Local/Oficina disponible en Piso 02, nueva área dentro de la Torre WTC Cd. de México.
400m2 disponibles en obra gris para su adaptación de acuerdo a sus necesidades y requerimientos de operación.
Excelente ubicación dentro de la Ciudad de México e inmejorable presentación para su negocio.
Altura de 4.25m de piso a plafón, se entrega con acometida eléctrica, acometida de voz y datos, acometida de agua helada. Acceso inmediato desde la calle, sin necesidad de registro para sus clientes y visitas. Seguridad y acceso 24 horas.
Ubicación: Piso 02 Torre WTC Ciudad de México
|
|
 |
 |
| |
|
RENTADO
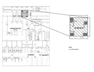
Local E-1 WTC
|
Local ú Oficina de 40m2 con acondicionamiento básico para tú negocio.
Acceso inmediato desde la calle y/o estacionamiento, sin necesidad de registro para sus clientes y visitas. Seguridad y acceso 24 horas.
Ubicación: E-1 Torre WTC Ciudad de México
|
 |
 |
 |
| |
|
RENTADO
Local para Cafetería WTC
|
Local en renta habilitado para servicio de Cafetería dentro de la Torre WTC Cd. de México.
Anclado con Servicios Médicos y acceso al Pasillo Comercial.
Prácticamente lista para iniciar operaciones.
Ubicación: Piso 01 WTC México, MED Center
|
 |
| |
|
|